Samostatná vila v Intra s privátní zahradou

Verbania, Via della Resistenza, Piemonte, Itálie

15 111 000 CZK
  1. EUR 620.000
  2. Provize 3,5%
  1. Historická vila
  2. Rok výstavby 1900
  3. 287 m² Celková plocha
  4. 680 m² Pozemek
  5. 8 Pokoj
  6. 6 Ložnice
  7. 3 Koupelna
  8. 3 Počet pater

Pouhých několik kroků od centra Intra a pobřeží jezera se nabízí tato historická samostatná vila z konce 19. století, zachovaná do značné míry v původním stavu. Čtyři podlaží mají prostorné a světlé místnosti propojené širokým schodištěm.

V přízemí se nachází vstupní hala, několik pokojů s krby, obytná kuchyně a technická místnost.

Hlavní ložnice jsou na prvním patře a zahrnují velkou ložnici s vlastní koupelnou, dvě další ložnice a druhou koupelnu. Přestavěné podkroví nabízí další tři pokoje a koupelnu, vhodné jako pokoje pro hosty, kancelář nebo prostor pro koníčky.

V suterénu se nacházejí dva pokoje se klenutými stropy, včetně kotelny.

Vila si zachovává architektonické detaily a původní materiály, což umožňuje konzervativní renovaci. Hlavní vchod je reprezentativně řešen.

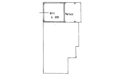
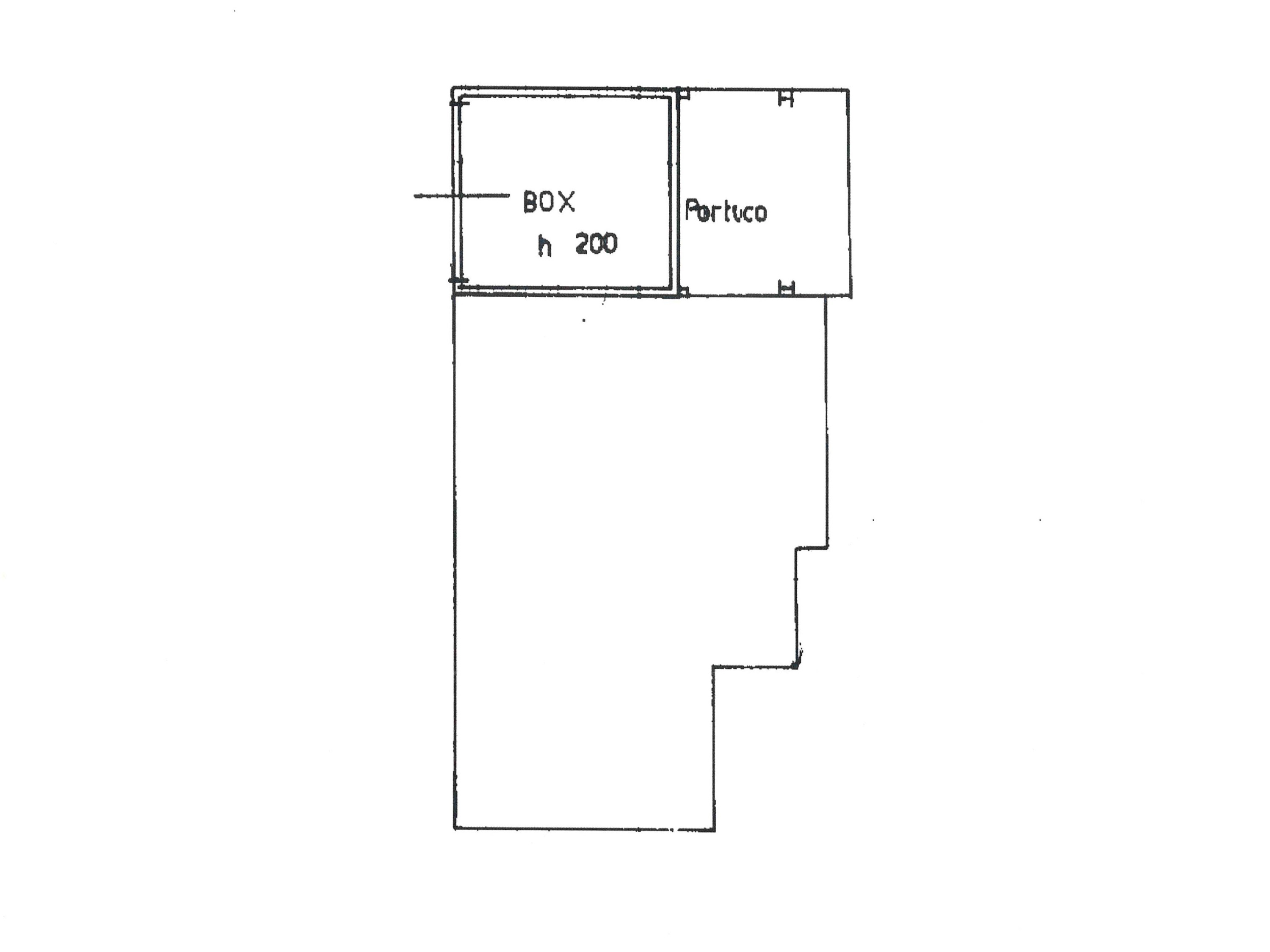
K nemovitosti patří soukromá zahrada a garáž.

Vzdálenosti:

  • Centrum Intra – pěšky
  • Pobřeží jezera – pěšky
  • Verbania – několik minut
  • Milán – cca 1 hod. 30 min
  • Letiště Malpensa (MXP) – cca 1 hod.

Půdorysy

Právní informace

Realitní kancelář

Città Ideale

Corso Mameli 203

28921 Verbania Intra

Itálie
Kontakt
Pevná linka: +39 0323 407435
Sledovat Città Ideale

Dostávat e-mailem nové nabídky na koupi od této realitní kanceláře. Požadavek na vyhledávání lze kdykoli deaktivovat.

  • REALPORTICO-ID
    2795073
  • Poslední změna
    Minulý měsíc
  • Počet shlédnutí
    1.18k
  • Počet dosažených osob
    990
Deset nejlepších zemí pro tuto historickou nemovitost
Zobrazení posledních 30 dnů

Città Ideale

Objevte další historické objekty

28824 Oggebbio, Piemonte
Historická nemovitost s výhledem na jezero Maggiore v Oggebbio
28823 Ghiffa, Piemonte
Zrekonstruovaný historický dům se třemi bytovými jednotkami a výhledem na jezero
28823 Ghiffa, Piemonte
Historická nemovitost s výhledem na jezero Maggiore