Napsat zprávu

Vila v raném stylu Liberty s výhledem na Lago Maggiore

Luino, Lombardia, Itálie

71 841 000 CZK
  1. EUR 2.950.000
  1. Historická vila
  2. Rok výstavby 1896
  3. 800 m² Užitná plocha
  4. 5 000 m² Pozemek
  5. 5 Ložnice
  6. 5 Koupelna

Tato vila z roku 1896 kombinuje prvky pozdního historismu s náznaky stylu Liberty, který se kolem přelomu století objevil v severní Itálii. Decentní interiérové detaily a velké prosklené plochy již naznačují přechod k moderně. Hlavní předností vily je bezpochyby působivý výhled na jezero Lago Maggiore s alpským panoramatem. 

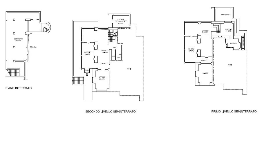
Na pozemku o rozloze 5 000 m² je k dispozici celkem 800 m² užitné plochy, včetně obytného podkroví, samostatné přístavby s možnostmi bydlení či podnikání a několika rekreačních zón. 

Vila se rozprostírá na čtyřech podlažích, která jsou přístupná výtahem i reprezentativním schodištěm s velkým střešním oknem. 

V přízemí se nachází prostorný obývací pokoj, jídelna a kuchyně. Dvě velké terasy vybízejí k vychutnávání výhledů na severoitalské jezero a alpské panorama.

Noční část je umístěna v prvním patře a zahrnuje dvoulůžkový pokoj s vlastní koupelnou s vířivou vanou a šatnou. K dispozici je také další pokoj s vlastním sociálním zázemím a přímým vstupem na terasu.

Obytné podkroví o ploše 180 m² nabízí dvě další apartmá s obývací částí, koupelnou a nádherným výhledem na jezero.

Suterén je vybaven hostinskými koupelnami a sklepními prostory o rozloze 100 m² s vysokými stropy a prostornými místnostmi vhodnými například jako kancelář. Tato část je přístupná z velké terasy. Díky dvojnásobné výšce stropu zde vznikla galerie, která je členěna na tři samostatné místnosti.

Samostatně přístupná dvoupodlažní přístavba s vlastní terasou a výhledem na jezero je vhodná pro personál nebo hosty.

Bazén v horní části parku je vybaven altánem, převlékárnou a sprchou. Dále je k dispozici fitness místnost o velikosti přibližně 60 m² s velkými okny. Garáž o ploše 160 m² pojme až čtyři vozy.

Pocházíte z Česka a hledáte nemovitost v Itálii?
Rádi vám tuto výjimečnou vilu osobně představíme při soukromé prohlídce a poskytneme vám plnou podporu při nákupu nemovitosti – od právního servisu přes správní náležitosti až po úspěšné dokončení transakce. Zajišťujeme bezpečný a bezstarostný průběh koupě pro české klienty. Neváhejte nás kontaktovat pro více informací a domluvení termínu návštěvy.

Právní informace

Realitní kancelář

Stresa Luxury Real Estate

Corso Italia 52

28838 Stresa

Itálie
Obchodní ředitel
Francesco Papurello
Kontakt
Pevná linka: +39 0323 32737
Webová stránka: https://www.stresa.biz
Sledovat Stresa Luxury Real Estate

Dostávat e-mailem nové nabídky na koupi od této realitní kanceláře. Požadavek na vyhledávání lze kdykoli deaktivovat.

  • REALPORTICO-ID
    2504144
  • Poslední změna
    Před 3 měsíci
  • Počet shlédnutí
    7.84k
  • Počet dosažených osob
    6.77k
Deset nejlepších zemí pro tuto historickou nemovitost
Zobrazení posledních 30 dnů

Stresa Luxury Real Estate

Objevte další historické objekty

Meina, Piemonte
Byt s výhledem na jezero ve Villa Azalea, Meina
28838 Stresa, Piemonte
Historická vila s panoramatickou věží, výhledem na jezero a zahradou v lázeňském městě Stresa
Belgirate, Piemonte
Vila Beretta-Treves na břehu jezera Lago Maggiore